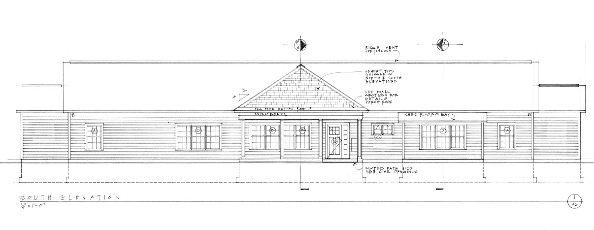
Boscawen, NH – North Branch Construction, Inc. of Concord is building a new 3,200sf house in Boscawen for Community Bridges. The single story six bedroom START facility-based respite home will provide active therapeutic supports to individuals who have been determined to require out-of-home evaluation, stabilization, and treatment implementation.
The home includes an open-concept common room, kitchen and dining area, as well as separate meeting rooms.
Community Bridges is a Concord-based non-profit agency serving disabled individuals in need and their families in local communities. Susan Phillips-Hungerford, AIA of Peterborough is providing design for the project, to be completed in the spring.


